Located in the rapidly growing Waller County along the newly expanded U.S. 290, Beacon Hill offers shovel-ready sites for immediate development. This master-planned environment is suitable for uses ranging from light industrial and office to retail, multifamily and hospitality.
Overview
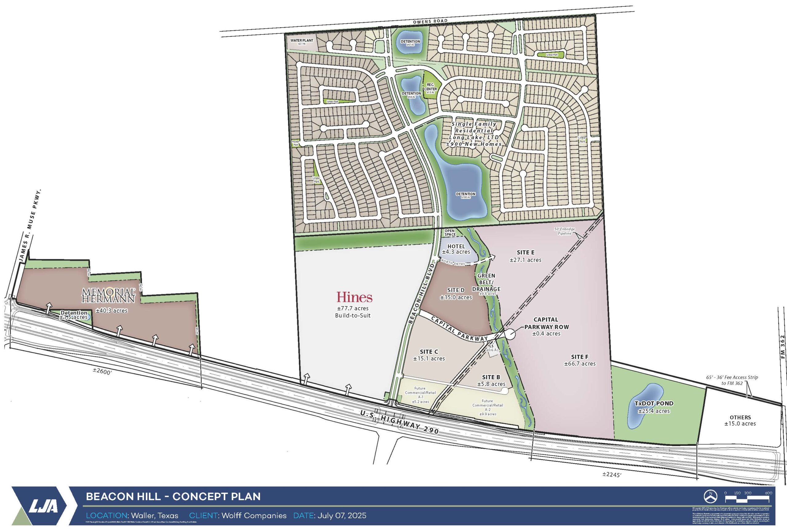
Beacon Hill is a pristine 587 acres of land located in the City and County of Waller, TX directly on the north side of U.S. 290 between FM 362 and James Muse Parkway within the City of Waller. The northernmost 270 acres of the tract have been purchased by Long Lake Ltd., one of the most active home builders in the Houston market, for their newest master-planned community. On the southern 317 acres abutting the freeway, Wolff Companies is developing a business park with uses ranging from light industrial and distribution to office, multifamily, and retail.
More than $33 million has already been invested in the community, which is now fully served by City of Waller utilities. Beacon Hill Boulevard, the community’s main thoroughfare, connects Highway U.S. 290 to Owens Road on the northern side of the property. In summer 2024, construction started on a new exit ramp and frontage road which will create direct access from U.S. 290 to Beacon Hill by Fall 2025.
In January 2022, Hines acquired 78 acres for a build-to-suit project, which can accommodate up to 1,300,000 square feet of distribution, manufacturing, or logistics capacity. The project will feature industry-leading building characteristics consistent with the Hines’ brand and the integrity and quality of the Beacon Hill development.
In addition to Long Lake, other respected master-planned community developers have substantial projects in the area, including Attwater, Lakeview, Bridgeland, Dunham Point, The Grand Prairie, Jubilee, Bellamina, Sagebrush, The Grange, Bluestem, Towne Lake, and Cypress Green, all of which are driving growth in the 290 Corridor. Supported by an excellent school district and the business-friendly climate in the City and County of Waller, Wolff Companies believes that the region is set for decades of high-quality growth and development.
Property Information
Beacon Hill, located in the City and County of Waller, Texas, consists of two tracts, totaling 587 acres, directly on U.S. 290 between FM 362 and James R. Muse Parkway.
Accessibility
Beacon Hill’s location directly on newly reconstructed U.S. 290 provides exceptional visibility and connectivity to Houston and points west such as Austin, Brenham, and College Station. The property features:
- More than 8,200 total feet of frontage on U.S. 290, which carries more than 64,000 cars per day;
- Proximity to the Grand Parkway, Houston’s third loop, which easily connects Waller to points north and south of Houston;
- Reduced Houston commuter drive times as a result of the now completed reconstruction of U.S. 290.
New infrastructure will provide excellent access to US 290 and beyond:
- Completed in 2024, Beacon Hill Boulevard connects U.S. 290 and Owens Road on the northern side of the property.
- The construction of a new U.S. 290 exit leading to Beacon Hill Boulevard and service road from Beacon Hill Boulevard to James R. Muse Parkway will be completed by Fall 2025.
- To aid traffic flow from Beacon Hill toward Houston, a new U-turn is currently constructed under U.S. 290 at James R. Muse Parkway. The interchange will be completed by Fall 2025.
Development Standards
As with other Wolff Companies projects, Beacon Hill will be master planned with development, architectural and landscaping guidelines to ensure long-term quality and value.
- Deed restrictions, as well as architectural development guidelines, ensure the planned environment will continue to offer high-quality surroundings for decades to come.
- Possible land uses include industrial, office, hospitality, healthcare, institutional, multi-family and retail.
- With the land buyer’s quest for value preservation and appreciation in mind, the protective covenants will establish minimum standards for land use, building materials, landscaping, signage, and other similar matters that define quality development.
Utilities
- Storm water detention and drainage, trunk water lines, trunk sanitary sewer, and a lift station as well as electrical lines already in place, representing a $33 million investment;
- The City of Waller, Texas supplies municipal grade water and sanitary sewer services to the property;
- CenterPoint provides electrical power in the area.
Detention and Flood Plain
A comprehensive land management plan creates permanent green space as well as drainage and will serve as an amenity for the entire community. None of the remaining land is in the 100 or 500-year flood plain.
Area Information
Beacon Hill is located in the City of Waller, just west of the intersection of U.S. 290 and FM 362. The property is in the economic development zone of the Waller County Economic Development Partnership and the City of Waller’s Economic Development Corporation.
Business Environment
Over the past five years, Waller County’s commercial tax base has expanded by 25 percent, reflecting strong investor confidence and sustained business development. Employment in Waller County has risen by 15 percent since 2020.
Major employers in Waller County now include Daikin, Elin Energy, Coloplast, Igloo, Amazon, Goya, Houston Executive Airport, Medline, Burkhardt Compression, and Prairie View A&M University.
Recent additions to the area include H-E-B, Mustang Cat, Grainger and OYH Construction Materials, all of which have manufacturing and distribution facilities under construction in the area.
Most recently, Tesla announced the construction of new facilities in Waller County, while TMEIC Corp. Americas, Waaree Solar, and Grundfos all announced multi-million-dollar expansions of their existing manufacturing plants.
Demographics
Over the past decade, Waller County’s population grew by more than 40 percent, to more than 67,000 as of December 2024, and is expected to reach 120,000 by 2040 according to the Houston-Galveston Area Council. The median household income is $82,598, according to the Waller County Economic Development Partnership.
Housing
In Beacon Hill, Long Lake is developing a master-planned residential community featuring approximately 870 homes, priced from $240s to $470s. First residents moved to Beacon Hill in August 2021. As of summer 2025, more than 200 families have made Beacon Hill home, with many additional homes in various construction stages. The master-planned community also features 30 acres of green recreational space, scenic ponds and paved walking trails, as well as a newly completed recreation center, including a swimming pool.
According to the Houston Association of Realtors (HAR), area towns Brookshire, Waller, and Hockley ranked among the top 10 Houston-area communities for sales increases in 2024 — rising 144.7 percent, 49.3 percent, and 43.2 percent, respectively. More than 43,000 new homes are planned in 13 residential subdivisions currently in development along the US 290 Corridor. Existing and future area developments include:
- Bridgeland, an established 11,500-acre master-planned community between U.S. Highway 290 and Interstate 10 in Cypress, TX continues to grow, with 20,000 homes planned across its four villages.
- Jubilee, a 1,622-acre master-planned community with 4,900 homes is located southwest of U.S. 290 and Katy Hockley Road in northwest Harris County, a few miles west of the Grand Parkway.
- Attwater, located on a 470-acre tract of land on Owens Road between FM 362 and James R. Muse Parkway, will add 1,100 homes to the area. Home sales started in Q1 2025.
- Cypress Green by Land Tejas is an 850-acre community, located on FM 2920 between U.S. 290 and Highway 249, just outside the Grand Parkway near Hockley. Approximately 2,100 homes are planned at buildout.
- In November 2023, Hines announced Wildrye a 1,400-home master-planned community in Waller. The community was sold to Castlerock Communities in early 2025 and first model homes are expected in summer 2025.
- The Grand Prairie is a 1,730-acre new master-planned community taking shape in Hockley. Two villages are currently under construction.
- At Knebel and Field Store roads north of the city of Waller in Harris County, Ashton Gray Development is building Oakwood Estates. Spanning 187 acres. The master-planned development will feature more than 560 homes.
- Lakeview is a 1,160-acre master-planned community in Waller County, a few miles south of Hempstead. The first homes were delivered in 2023. Plans for future phases include additional lots and potential expansion up to 2,800 total acres.
- Dunham Pointe is a 1,327-acre, master-planned community, located on the south side of U.S. 290 and Mason Road in Cypress, Texas. Construction on a 25-acre mixed-use development within the community, including retail and dining district, is expected to start in Q4 2025, with openings planned for early 2027.
- Towne Lake – Caldwell Cos. continues to build out the Towne Lake neighborhood in Cypress, with the ground opening for Asher, a multifamily project, scheduled for August 2025.
- Maple Development broke ground on Azalea – a 270-acre community in Waller County in November 2024, and announced additional villages, Bellamina and Sagebrush, in late May 2025.
School District
Beacon Hill is zoned to the high performing Waller Independent School District, the largest school district in total square miles in the Houston area, encompassing 328 square miles in Waller and northwest Harris Counties.
- For more than 10 consecutive years, Waller ISD has been rated the safest school district in Harris County and has had a longstanding tradition of academic and extracurricular excellence.
- In 2024, the district purchased land for additional schools in The Grand Prairie and Jubilee master-planned communities in Hockley and in Wildrye master-planned community in Waller.
- With a 10.5 % year-over-year increase, ten Waller ISD campuses serve more than 10,000 students. Over the next decade the student population is projected to nearly triple, reaching 27,000 students.
- The new Waller High School opened in Fall 2022. The 620,000 square feet facility offers comprehensive academic, fine arts, and athletics as well as Career and Technology programs all under one roof. Students can earn more than 20 industry-based certifications in more than 15 career and technical education fields, and more than 40 hours of dual-credit college courses.
- Two elementary schools located in Bridgeland and Dellrose subdivisions were opened in August 2024.
- The most recent 2024 Bond package will fund the construction of two new elementary schools, a junior high, and a high school, as well as land acquisition for future district facilities.
- Overview
-
Overview
Beacon Hill is a pristine 587 acres of land located in the City and County of Waller, TX directly on the north side of U.S. 290 between FM 362 and James Muse Parkway within the City of Waller. The northernmost 270 acres of the tract have been purchased by Long Lake Ltd., one of the most active home builders in the Houston market, for their newest master-planned community. On the southern 317 acres abutting the freeway, Wolff Companies is developing a business park with uses ranging from light industrial and distribution to office, multifamily, and retail.
More than $33 million has already been invested in the community, which is now fully served by City of Waller utilities. Beacon Hill Boulevard, the community’s main thoroughfare, connects Highway U.S. 290 to Owens Road on the northern side of the property. In summer 2024, construction started on a new exit ramp and frontage road which will create direct access from U.S. 290 to Beacon Hill by Fall 2025.
In January 2022, Hines acquired 78 acres for a build-to-suit project, which can accommodate up to 1,300,000 square feet of distribution, manufacturing, or logistics capacity. The project will feature industry-leading building characteristics consistent with the Hines’ brand and the integrity and quality of the Beacon Hill development.
In addition to Long Lake, other respected master-planned community developers have substantial projects in the area, including Attwater, Lakeview, Bridgeland, Dunham Point, The Grand Prairie, Jubilee, Bellamina, Sagebrush, The Grange, Bluestem, Towne Lake, and Cypress Green, all of which are driving growth in the 290 Corridor. Supported by an excellent school district and the business-friendly climate in the City and County of Waller, Wolff Companies believes that the region is set for decades of high-quality growth and development.
- Property Information
-
Property Information
Beacon Hill, located in the City and County of Waller, Texas, consists of two tracts, totaling 587 acres, directly on U.S. 290 between FM 362 and James R. Muse Parkway.
Accessibility
Beacon Hill’s location directly on newly reconstructed U.S. 290 provides exceptional visibility and connectivity to Houston and points west such as Austin, Brenham, and College Station. The property features:
- More than 8,200 total feet of frontage on U.S. 290, which carries more than 64,000 cars per day;
- Proximity to the Grand Parkway, Houston’s third loop, which easily connects Waller to points north and south of Houston;
- Reduced Houston commuter drive times as a result of the now completed reconstruction of U.S. 290.
New infrastructure will provide excellent access to US 290 and beyond:
- Completed in 2024, Beacon Hill Boulevard connects U.S. 290 and Owens Road on the northern side of the property.
- The construction of a new U.S. 290 exit leading to Beacon Hill Boulevard and service road from Beacon Hill Boulevard to James R. Muse Parkway will be completed by Fall 2025.
- To aid traffic flow from Beacon Hill toward Houston, a new U-turn is currently constructed under U.S. 290 at James R. Muse Parkway. The interchange will be completed by Fall 2025.
Development Standards
As with other Wolff Companies projects, Beacon Hill will be master planned with development, architectural and landscaping guidelines to ensure long-term quality and value.
- Deed restrictions, as well as architectural development guidelines, ensure the planned environment will continue to offer high-quality surroundings for decades to come.
- Possible land uses include industrial, office, hospitality, healthcare, institutional, multi-family and retail.
- With the land buyer’s quest for value preservation and appreciation in mind, the protective covenants will establish minimum standards for land use, building materials, landscaping, signage, and other similar matters that define quality development.
Utilities
- Storm water detention and drainage, trunk water lines, trunk sanitary sewer, and a lift station as well as electrical lines already in place, representing a $33 million investment;
- The City of Waller, Texas supplies municipal grade water and sanitary sewer services to the property;
- CenterPoint provides electrical power in the area.
Detention and Flood Plain
A comprehensive land management plan creates permanent green space as well as drainage and will serve as an amenity for the entire community. None of the remaining land is in the 100 or 500-year flood plain.
- Area Information
-
Area Information
Beacon Hill is located in the City of Waller, just west of the intersection of U.S. 290 and FM 362. The property is in the economic development zone of the Waller County Economic Development Partnership and the City of Waller’s Economic Development Corporation.
Business Environment
Over the past five years, Waller County’s commercial tax base has expanded by 25 percent, reflecting strong investor confidence and sustained business development. Employment in Waller County has risen by 15 percent since 2020.
Major employers in Waller County now include Daikin, Elin Energy, Coloplast, Igloo, Amazon, Goya, Houston Executive Airport, Medline, Burkhardt Compression, and Prairie View A&M University.
Recent additions to the area include H-E-B, Mustang Cat, Grainger and OYH Construction Materials, all of which have manufacturing and distribution facilities under construction in the area.
Most recently, Tesla announced the construction of new facilities in Waller County, while TMEIC Corp. Americas, Waaree Solar, and Grundfos all announced multi-million-dollar expansions of their existing manufacturing plants.
Demographics
Over the past decade, Waller County’s population grew by more than 40 percent, to more than 67,000 as of December 2024, and is expected to reach 120,000 by 2040 according to the Houston-Galveston Area Council. The median household income is $82,598, according to the Waller County Economic Development Partnership.
Housing
In Beacon Hill, Long Lake is developing a master-planned residential community featuring approximately 870 homes, priced from $240s to $470s. First residents moved to Beacon Hill in August 2021. As of summer 2025, more than 200 families have made Beacon Hill home, with many additional homes in various construction stages. The master-planned community also features 30 acres of green recreational space, scenic ponds and paved walking trails, as well as a newly completed recreation center, including a swimming pool.
According to the Houston Association of Realtors (HAR), area towns Brookshire, Waller, and Hockley ranked among the top 10 Houston-area communities for sales increases in 2024 — rising 144.7 percent, 49.3 percent, and 43.2 percent, respectively. More than 43,000 new homes are planned in 13 residential subdivisions currently in development along the US 290 Corridor. Existing and future area developments include:
- Bridgeland, an established 11,500-acre master-planned community between U.S. Highway 290 and Interstate 10 in Cypress, TX continues to grow, with 20,000 homes planned across its four villages.
- Jubilee, a 1,622-acre master-planned community with 4,900 homes is located southwest of U.S. 290 and Katy Hockley Road in northwest Harris County, a few miles west of the Grand Parkway.
- Attwater, located on a 470-acre tract of land on Owens Road between FM 362 and James R. Muse Parkway, will add 1,100 homes to the area. Home sales started in Q1 2025.
- Cypress Green by Land Tejas is an 850-acre community, located on FM 2920 between U.S. 290 and Highway 249, just outside the Grand Parkway near Hockley. Approximately 2,100 homes are planned at buildout.
- In November 2023, Hines announced Wildrye a 1,400-home master-planned community in Waller. The community was sold to Castlerock Communities in early 2025 and first model homes are expected in summer 2025.
- The Grand Prairie is a 1,730-acre new master-planned community taking shape in Hockley. Two villages are currently under construction.
- At Knebel and Field Store roads north of the city of Waller in Harris County, Ashton Gray Development is building Oakwood Estates. Spanning 187 acres. The master-planned development will feature more than 560 homes.
- Lakeview is a 1,160-acre master-planned community in Waller County, a few miles south of Hempstead. The first homes were delivered in 2023. Plans for future phases include additional lots and potential expansion up to 2,800 total acres.
- Dunham Pointe is a 1,327-acre, master-planned community, located on the south side of U.S. 290 and Mason Road in Cypress, Texas. Construction on a 25-acre mixed-use development within the community, including retail and dining district, is expected to start in Q4 2025, with openings planned for early 2027.
- Towne Lake – Caldwell Cos. continues to build out the Towne Lake neighborhood in Cypress, with the ground opening for Asher, a multifamily project, scheduled for August 2025.
- Maple Development broke ground on Azalea – a 270-acre community in Waller County in November 2024, and announced additional villages, Bellamina and Sagebrush, in late May 2025.
School District
Beacon Hill is zoned to the high performing Waller Independent School District, the largest school district in total square miles in the Houston area, encompassing 328 square miles in Waller and northwest Harris Counties.
- For more than 10 consecutive years, Waller ISD has been rated the safest school district in Harris County and has had a longstanding tradition of academic and extracurricular excellence.
- In 2024, the district purchased land for additional schools in The Grand Prairie and Jubilee master-planned communities in Hockley and in Wildrye master-planned community in Waller.
- With a 10.5 % year-over-year increase, ten Waller ISD campuses serve more than 10,000 students. Over the next decade the student population is projected to nearly triple, reaching 27,000 students.
- The new Waller High School opened in Fall 2022. The 620,000 square feet facility offers comprehensive academic, fine arts, and athletics as well as Career and Technology programs all under one roof. Students can earn more than 20 industry-based certifications in more than 15 career and technical education fields, and more than 40 hours of dual-credit college courses.
- Two elementary schools located in Bridgeland and Dellrose subdivisions were opened in August 2024.
- The most recent 2024 Bond package will fund the construction of two new elementary schools, a junior high, and a high school, as well as land acquisition for future district facilities.
- Plat
- Aerial

